Neubau eines Flexible-Use Gebäudes in Göttingen
Auf einem verkehrsgünstig gelegenen Grundstück entsteht ein modernes Flexible-Use Gebäude, das durch eine hervorragende Anbindung an den öffentlichen Nahverkehr überzeugt. Im Sinne nachhaltiger Mobilität werden außerdem Shared-E-Autos von Anfang an in das Konzept integriert.
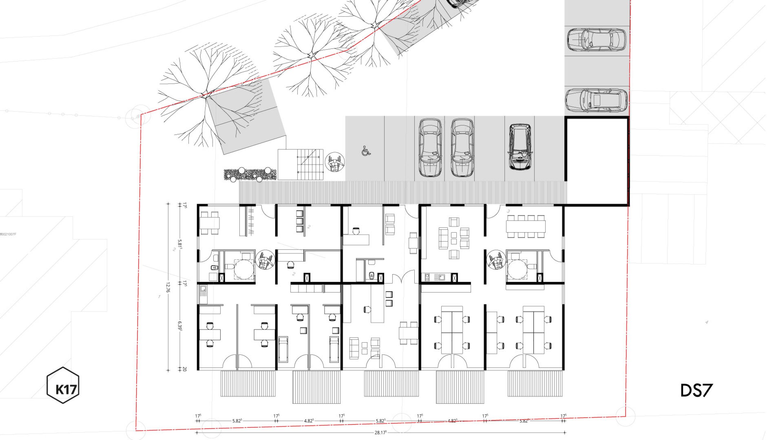
Das Hybridgebäude aus Holz und Beton setzt auf eine überwiegend elektrische Versorgung und ermöglicht durch seine flexible Grundrissstruktur die Realisierung unterschiedlich großer Nutzungseinheiten und -konzepte. So schaffen wir ein zukunftsorientiertes und nachhaltiges Bauvorhaben, das vielfältige Anforderungen erfüllt.
Projektdaten
-
StandortGöttingen, Nds
-
TypFlexible-Use
-
Zeitraumab 2025
-
ArtNeubau
-
LeistungProjektentwicklung
Projekt






weitere Projekte


